תכנון חשמל לבית / דירה
מערכות המנ"מ (מתח נמוך: טלפון, כבלים, אזעקה, תקשורת, אינטרקום) והחשמל בימינו הולכות ומתפתחות והופכות למתוחכמות ומורכבות יותר. יחד עם זה מערכות אלו נותנות מענה לדרישות ולצרכים שלנו ההולכים ומתרבים.
התפתחות המערכות השונות נותנת לנו כמשתמשים, פתרונות רבים ודרכים להעלות את רמת החיים והפינוק שלנו. על מנת שנוכל להפיק את המירב ממערכות החשמל והמנ"מ נדרש ידע, מקצועיות וניסיון בתחומים אלו ולכן יש צורך בשירותיו של מתכנן חשמל.
המערכות הביתיות השונות, גם ללא מערכת חשמל חכם (ראה מאמר: חשמל לבית חכם) מורכבות מאוד וכדאי להעביר את המלאכה למתכנן חשמל הבקיא בחוקי החשמל, בטיחות בחשמל, בסוגי הציוד, בצרכי הדייר, בעלויות של הפתרונות השונים ולא להסתפק בהמלצה של מעצב פנים בנושא מערכות אלו. תכנון לא נכון או חוסר תכנון של המערכות עלול להביא להוצאות גדולות ללא תמורה מתאימה, לעיכוב בלוח זמנים ולא אחת, לאחר מעשה ,התפשרויות רבות מצד הדייר.
לצערי, פונים אלי לא אחת לבצע בדיקות חשמל מקיפות בסיום העבודה, כאשר גרים בבית והאפשרויות לבצע שינויים קטנות ויקרות, במטרה להבין מדוע מערכות הבית אינן מתפקדות כפי שמצופה מהן. שירותיו של מתכנן חשמל המפרטות את מיקום אביזרי החשמל והמנ"מ, את סוג הציוד, החלוקה למעגלים וכד', הייתה חוסכת עוגמת נפש וכספים רבים, כך שעלות מתכנן חשמל במקרים אלו נמוכה בהרבה מעלות תיקון הליקויים.
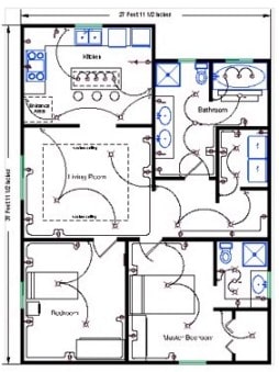
לאחר שאדריכל/מעצב פנים הוציא תוכניות פנים, על מתכנן החשמל להשלים את התוכניות לפי צרכי הדיירים ובהתאם לחוק החשמל ותנאי הבטיחות הנכונים. תוכניות חשמל יכללו את מספר נקודות החשמל, תאורה (ראה מאמר:תכנון חשמל-תאורה ביתית), לוחות החשמל וציודם ,מספר מעגלים וחלוקתם הנכונה לפי צרכי הדייר ואת תוכניות המנ"מ בבית, את מיקומם בהתאם לתוכנית הפנים שהוגשה ולדרישות הדייר, את סוג הציוד, חלוקה למעגלים וכל שיקול אחר הנדרש כדי לתת מענה מקיף ובטוח לכל הצרכים והתנאים. סוג הציוד הנקבע מתייחס הן לתקני החשמל ולאיכות הציוד והן למראה החיצוני שלו וצבעו.
על מתכנן החשמל לקחת בחשבון את הצרכים המידיים הנדרשים בהתאם לדרישות ואת הצרכים העתידיים שהוא רואה לנגד עיניו ובהתאם לאלו לתכנן את לוחות החשמל בצורה מפורטת ואת גודל החיבור הנדרש.
לאחר שמתכנן חשמל סיים את הכנת התוכניות ואלו אושרו על ידי הלקוח, יערוך מתכנן החשמל כתב כמויות בו מפורטות כל העבודות הנדרשות, החל מהארקות, הנחת צנרת, מוליכים, אביזרים ודרך סוגי הצנרת והכבלים וכלה בהתקנות הסופיות. כמו כן יוגש אומדן מחיר לכל העבודות המפורטות.
כתב הכמויות יוגש למספר חשמלאים לפי ראות עיניו של הלקוח. אם יש צורך יופנו מספר חשמלאים דרך מתכנן החשמל. כל בעלי המקצוע יגישו הצעת מחיר לפי מפרט הזהה לכולם וכך ניתן להשוות בצורה אמיתית בין הצעות המחיר. השוואה זו לא ניתנת למימוש ללא כתב כמויות מפורט, שאז כל חשמלאי מחליט על חלוקה כזו או אחרת לפי שיקוליו, על סוג הציוד, חלוקה למעגלים וכד' ולכן איכות העבודה ומחירה יהיו שונים מבעל מקצוע אחד לשני ועלול להיות שהציוד המותקן יהיה ללא תו תקן ולא בטוח לשימוש.
יש לוודא שהחשמלאי המבצע בנוסף לניסיון שלו בתחום, מחזיק ברישיון חשמל בתוקף המתאים לביצוע העבודה.
אין לאפשר לאדם שאינו מחזיק ברישיון כחוק לבצע עבודת חשמל ואין לאפשר עבודה כזו כאשר רישיון החשמל לא של האדם המבצע את העבודה, גם אם מחירה נמוך יותר. לצערי מספר רב של חשמלאים עובדים תחת רישיון של אדם אחר המוכר את השימוש ברישיון ולא מגיע לאתר העבודה. האחריות על כל בעלי המקצוע היא של בעל הדירה.
הצעות המחיר יועברו אל מתכנן החשמל, לאחר עיון ראשוני בהם ובפרטי החשמלאי המבצע ,יועברו ההצעות שעומדות בתנאים יחד עם המלצת מתכנן החשמל אל הלקוח לקבלת החלטה מי בעל המקצוע הנבחר לביצוע העבודות.
בשלב זה יש לנו תוכניות חשמל ומנ"מ מפורטות ובעל מקצוע שיבצע אותן, מכאן ועד לגמר העבודות מומלץ להיעזר בשרותיו של מפקח חשמל ולוודא התאמה בין תוכניות החשמל לבין הביצוע בפועל. (ראה מאמר: פיקוח על עבודות חשמל).
